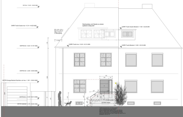
Einfamilienhaus Düsseldorf
Erweiterung in Holzrahmenbauweise und energetische Sanierung des Bestandgebäudes
Einfamilienhaus Düsseldorf
Erweiterung in Holzrahmenbauweise und energetische Sanierung des Bestandgebäudes









